Welcome to the Archives of The Paul Rudolph Institute for Modern Architecture. The purpose of this online collection is to function as a tool for scholars, students, architects, preservationists, journalists and other interested parties. The archive consists of photographs, slides, articles and publications from Rudolph’s lifetime; physical drawings and models; personal photos and memorabilia; and contemporary photographs and articles.
Some of the materials are in the public domain, some are offered under Creative Commons, and some are owned by others, including the Paul Rudolph Estate. Please speak with a representative of The Paul Rudolph Institute for Modern Architecture before using any drawings or photos in the Archives. In all cases, the researcher shall determine how to appropriately publish or otherwise distribute the materials found in this collection, while maintaining appropriate protection of the applicable intellectual property rights.
In his will, Paul Rudolph gave his Architectural Archives (including drawings, plans, renderings, blueprints, models and other materials prepared in connection with his professional practice of architecture) to the Library of Congress Trust Fund following his death in 1997. A Stipulation of Settlement, signed on June 6, 2001 between the Paul Rudolph Estate and the Library of Congress Trust Fund, resulted in the transfer of those items to the Library of Congress among the Architectural Archives, that the Library of Congress determined suitable for its collections. The intellectual property rights of items transferred to the Library of Congress are in the public domain. The usage of the Paul M. Rudolph Archive at the Library of Congress and any intellectual property rights are governed by the Library of Congress Rights and Permissions.
However, the Library of Congress has not received the entirety of the Paul Rudolph architectural works, and therefore ownership and intellectual property rights of any materials that were not selected by the Library of Congress may not be in the public domain and may belong to the Paul Rudolph Estate.
LOCATION
Address: 1300 Westway Drive
City: Sarasota
State: Florida
Zip Code: 34236
Nation: United States
STATUS
Type: Residence
Status: Built
TECHNICAL DATA
Date(s): 1953-1954
Site Area:
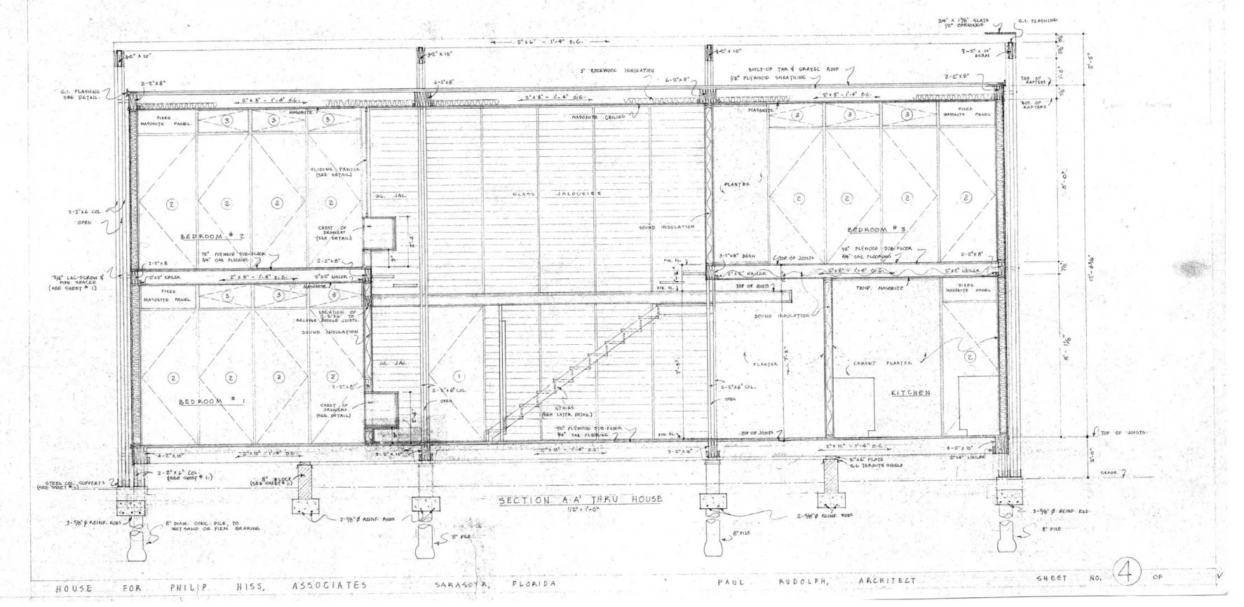
Floor Area: 3 bed, 3 bath, 1,800 ft² (167.2 m²)
Height:
Floors (Above Ground):
Building Cost:
PROFESSIONAL TEAM
Client:
Architect: Paul Rudolph
Associate Architect:
Landscape:
Structural:
MEP:
QS/PM:
SUPPLIERS
Contractor:
Subcontractor(s):
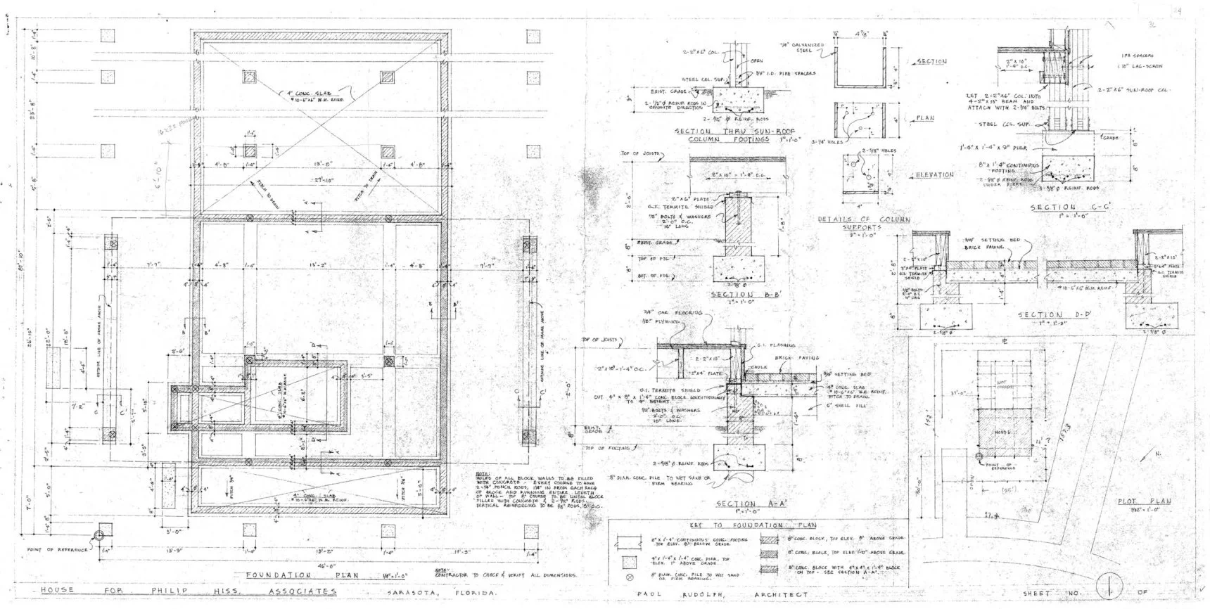
Hiss Residence - ‘Umbrella House’
Nicknamed the “Umbrella” house because of its distinguishing feature- large trellis structure sheltering the entire body of the house including the deck and the pool
It was listed as “One of the five most remarkable houses of the mid-twentieth century” by Architectural Digest.
In 1960, the “umbrella’ trellis over the pool is damaged during a tropical storm.
The house is sold on October 10, 1997 for $250,000 USD
The house is sold on April 08, 2005 for $1,200,000 USD
In 2011, owners Anne and Bob Essner hire architect Greg Hall to do a full renovation including the reconstruction of the umbrella, which receives several Historic Preservation Awards.
The house is sold on January 30, 2015 for $1,600,000 USD
It was listed in the “Florida buildings I love” by Harold Bubil, the distinguished Real Estate Editor Emeritus for Sarasota’s Herald-Tribune.
Owners Anne and Bob Essner win a 2022 Sarasota County Heritage Award for their restoration of the residence from the Sarasota Alliance for Historic Preservation on April 30, 2022.
In 2026 the residence is awarded the prestigious Stewardship Award for Modernist Homes by the World Monuments Fund.
“The intense sun of Florida suggested a shade-roof covering the house’s swimming pool and terraces. The double roof is organized by a regular structure, but the interior volumes of space are independently arranged free of the roof structure, thereby allowing each space to be clearly formed according to its needs. ”
DRAWINGS - Design Drawings / Renderings
DRAWINGS - Construction Drawings
DRAWINGS - Shop Drawings
PHOTOS - Project Model
PHOTOS - During Construction
PHOTOS - Completed Project
PHOTOS - Current Conditions
LINKS FOR MORE INFORMATION
The Hiss Residence (“Umbrella House”) on the Sarasota Architectural Foundation website
RELATED DOWNLOADS
PROJECT BIBLIOGRAPHY
Rudolph, P. and Moholy-Nagy, S. (1970). The Architecture of Paul Rudolph. New York: Praeger, pp. 44-45.
